Aalberts IPS Revit plug-in
Entwerfen Sie komplexe Rohrleitungssysteme schneller mit bis zu 15.000 Produkten von Aalberts integrated piping systems
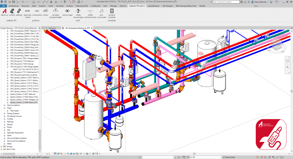
Aalberts integrated piping systems hat ein kostenlose Plugin für Autodesk Revit entwickelt, mit dem Anwender einfach und übersichtlich Revit-Familien auswählen und in Projekte laden können. Neben einer Bibliotheksfunktion enthält das Plugin eine Reihe nützlicher Werkzeuge, die die Modellierung von Rohrleitungssystemen innerhalb von Autodesk Revit vereinfachen.
- Geeignet für Autodesk Revit-Versionen ab 2019 Strukturierte Daten basierend auf dem ETIM-MC-Standard
- Optimierte Rohrtypen und Routing-Präferenzen basierend auf Anwendung, Zulassung und Rohrnorm
- Auswahl- und Modellierungswerkzeuge, die den Arbeitsablauf vereinfachen und die Produktivität steigern
Kostenloses Tool für eine effizientere Revit-Modellierung von Rohren und Installationen mit Aalberts integrated piping systems produkte
Software-Plugin zum Zeichnen dynamischer Rohrleitungssysteme in Revit

- Kostenloses Revit-Add-In mit direktem Zugriff auf den vollständigen aktuellen Produktkatalog der integrierten Rohrleitungssysteme von Aalberts mit bis zu 15.000 Produkten
- Auch Modellierungswerkzeuge zur Vereinfachung des Arbeitsablaufs und zur Steigerung der Produktivität
- Rohrsystem-Assistent mit einfachen Filtermöglichkeiten nach Anwendung, Produktlinien, Rohrmaterial und Qualitätsstandards


